Se jeter à l’eau ● piscine intercommunale
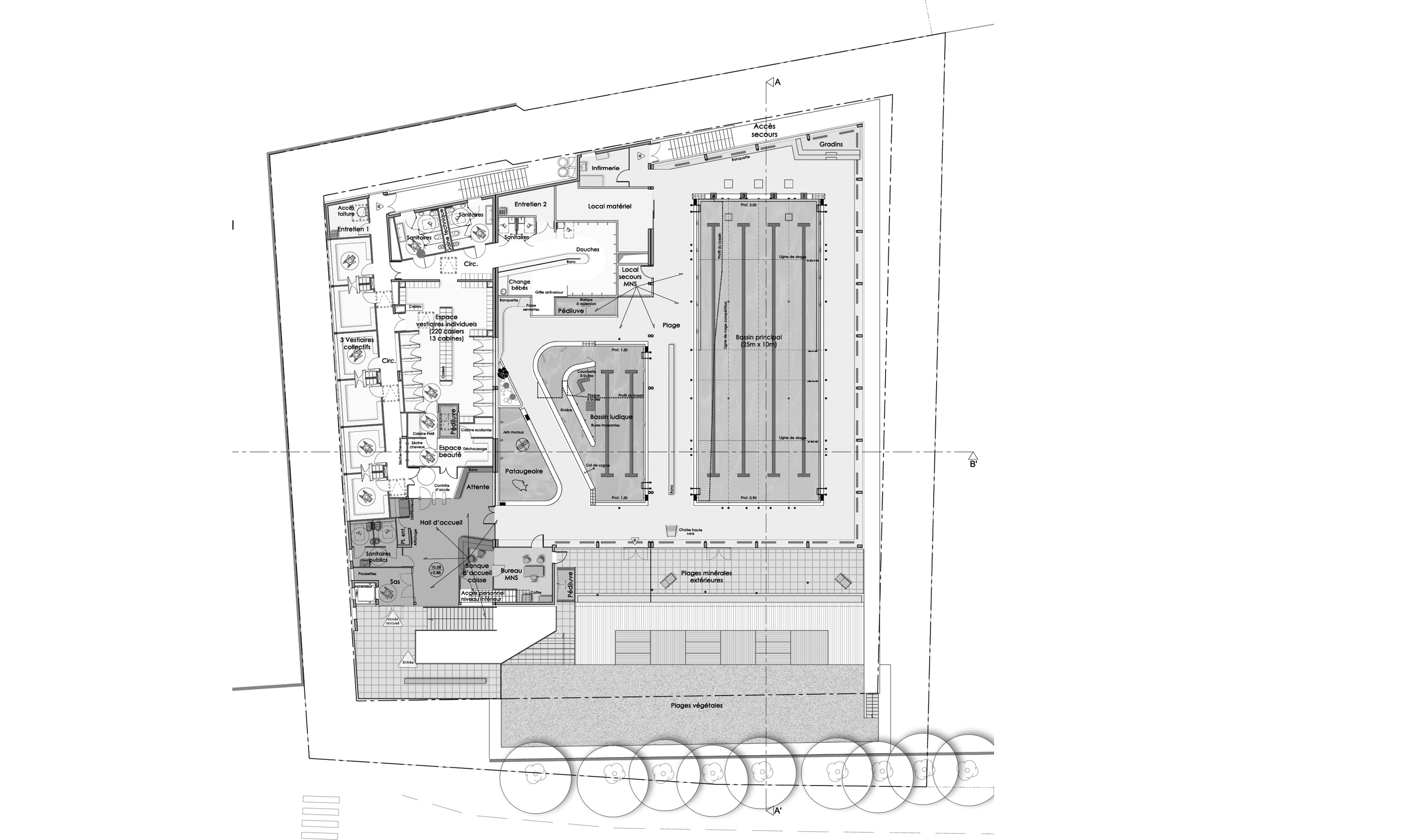
A Lansargues, les contraintes du site nous ont mené à penser l’organisation autrement. La parcelle étroite et la proximité d’une nappe phréatique ont signé l’impossibilité de placer les bassins du futur ouvrage au rez-de-chaussée.
Se jeter à l’eau ● piscine intercommunale
« Renverser la vapeur ! », tel était l’enjeu du projet, faire de la contrainte un atout de projet. Ainsi les locaux techniques et les accès parking sont venus se nicher sous un grand socle aux multiples usages . Cet escalier-gradin, objet hybride est un point d’arrêt, où «farniente», rencontres et discussions sont à l’honneur. Ludique et pratique, il fait office de solarium et articule la liaison entre les différents niveaux : plages enherbées et bassins. Ce socle technique, devenu promontoire permet depuis les bassins d’ouvrir la vue sur le grand paysage.
Se jeter à l’eau ● piscine intercommunale
Le bâtiment s’intègre à l’environnement, il est traversé par la lumière et l’œil file. En toiture la structure en caissons de bois laméllé-collé permet d’inscrire le bâtiment dans les limites de hauteur autorisées par le PLU. Des sheds de lumières orientés nord rythment la sous-face et apporte un ensoleillement adapté à la pratique du lieu. Au sud, des sheds baignent de lumière les bassins ludiques.
Se jeter à l’eau ● piscine intercommunale
En extérieur, la belle se coiffe d’une mantille bois et métal qui se déploie et donne la dynamique. La structure s’étire et se plie, elle oscille avec souplesse et protège les façades les plus exposées; la géante capture la lumière !
Le socle interactif fédère le projet et permet d’opérer des changements d’atmosphères, de hiérarchiser les espaces et d’accompagner la transition intérieur/extérieur en reliant bassins, jardin et vue qui comptent désormais comme un système complet et qualitatif au service d’un moment de sport et de loisirs.
Se jeter à l’eau ● piscine intercommunale
En extérieur, la belle se coiffe d’une mantille bois et métal qui se déploie et donne la dynamique. La structure s’étire et se plie, elle oscille avec souplesse et protège les façades les plus exposées; la géante capture la lumière !
Le socle interactif fédère le projet et permet d’opérer des changements d’atmosphères, de hiérarchiser les espaces et d’accompagner la transition intérieur/extérieur en reliant bassins, jardin et vue qui comptent désormais comme un système complet et qualitatif au service d’un moment de sport et de loisirs.
Se jeter à l’eau ● piscine intercommunale
En extérieur, la belle se coiffe d’une mantille bois et métal qui se déploie et donne la dynamique. La structure s’étire et se plie, elle oscille avec souplesse et protège les façades les plus exposées; la géante capture la lumière !
Le socle interactif fédère le projet et permet d’opérer des changements d’atmosphères, de hiérarchiser les espaces et d’accompagner la transition intérieur/extérieur en reliant bassins, jardin et vue qui comptent désormais comme un système complet et qualitatif au service d’un moment de sport et de loisirs.
Se jeter à l’eau ● piscine intercommunale
Lansargues (34)
Livrée en 2017
Bassin sportif de 25m, 2 bassins ludiques, plages extérieurs bois, rdc technique

Equipe : TLA • MBA • OTCE • Environnement bois / Darvers

A Lansargues, les contraintes du site nous ont mené à penser l’organisation autrement. La parcelle étroite et la proximité d’une nappe phréatique ont signé l’impossibilité de placer les bassins du futur ouvrage au rez-de-chaussée.

« Renverser la vapeur ! », tel était l’enjeu du projet, faire de la contrainte un atout de projet. Ainsi les locaux techniques et les accès parking sont venus se nicher sous un grand socle aux multiples usages . Cet escalier-gradin, objet hybride est un point d’arrêt, où «farniente», rencontres et discussions sont à l’honneur. Ludique et pratique, il fait office de solarium et articule la liaison entre les différents niveaux : plages enherbées et bassins. Ce socle technique, devenu promontoire permet depuis les bassins d’ouvrir la vue sur le grand paysage.

Le bâtiment s’intègre à l’environnement, il est traversé par la lumière et l’œil file. En toiture la structure en caissons de bois laméllé-collé permet d’inscrire le bâtiment dans les limites de hauteur autorisées par le PLU. Des sheds de lumières orientés nord rythment la sous-face et apporte un ensoleillement adapté à la pratique du lieu. Au sud, des sheds baignent de lumière les bassins ludiques.

En extérieur, la belle se coiffe d’une mantille bois et métal qui se déploie et donne la dynamique. La structure s’étire et se plie, elle oscille avec souplesse et protège les façades les plus exposées; la géante capture la lumière !
Le socle interactif fédère le projet et permet d’opérer des changements d’atmosphères, de hiérarchiser les espaces et d’accompagner la transition intérieur/extérieur en reliant bassins, jardin et vue qui comptent désormais comme un système complet et qualitatif au service d’un moment de sport et de loisirs.

