La Providence ● habitat collectif

Montpellier (34)
Livré en 2025

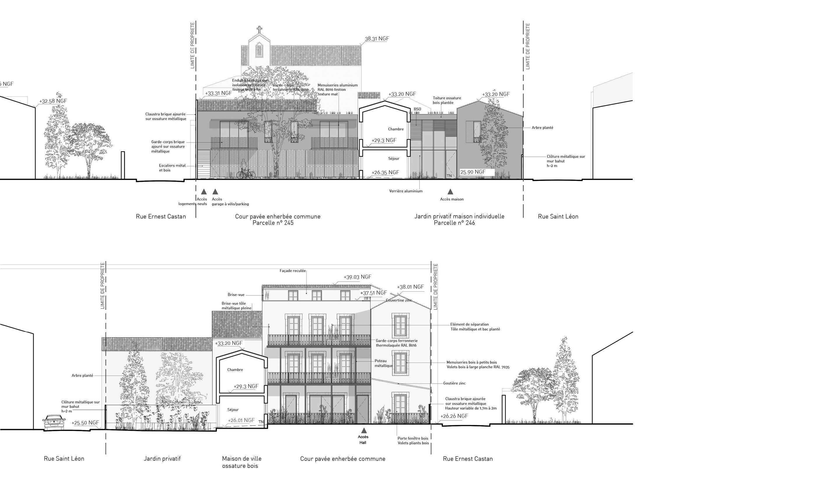
Réhabilitation de 8 logements dans un ancien couvent et école dans le quartier des Beaux-Arts. Création de 3 logements en neuf et d’une maison individuelle.L’ensemble des bâtiments est implanté autour d’un cœur d’îlot végétal
axo_pro

Équipe architecturale: TLA • Cabinet DELORME • ALABISO • BET Pialot-Escande

© photo: Adrien Guitard

La Providence – rendu architectural, habitat collectif à Montpellier, TLA architectes

La Providence est un projet de réhabilitation lourde d’un ancien couvent religieux du début du XIXème Siècle en petit collectif de 8 logements inscrit dans les volumes existants. Pour offrir un espace extérieur aux logements, nous avons créés de larges terrasses en prolongement du bâtiment existant. Dans les interstices créés par la démolition des bâtiments obsolètes, est créé une
maison individuelle côté rue Saint-Léon dans l’objectif de conserver l’identité de faubourg caractéristique à la rue et au quartier et, accolé à l’Eglise Saint Léon, s’érige un petit ensemble de 3 logements posé sur un socle dédié au stationnement. Le volume de cette partie du projet ne dépasse pas le R+1 et le jeu de découpage des toitures participe à caractériser l’intention du projet, celle de créer des maisons de villes imbriquées.

© photo: Adrien Guitard

La Providence – rendu architectural, habitat collectif à Montpellier, TLA architectes

Face au transept Sud de l’église Saint Léon, un retrait d’alignement est opéré pour libérer un petit jardin patio et de rendre intimiste la seule terrasse du logement qui ouvre sur cet espace. Le projet s’inscrit dans une dialectique assumée entre patrimoine restauré et créations nouvelles. Tandis que le patrimoine conservé sera réhabilité et mis en valeur dans les règles de l’art, les parties construites neuves, marqueront leurs différences et une époque nouvelle en arborant une teinte volontairement soutenue.

© photo: Adrien Guitard

La Providence – rendu architectural, habitat collectif à Montpellier, TLA architectes

Les codes traditionnels (baies verticales, encadrements, corniches, ferronneries d’art etc.) sont réinterprétés par des traitements plus contemporains mais toujours respectueux de l’environnement patrimonial dans lequel ces constructions nouvelles s’inscrivent. Par un jeu de contrastes, le projet propose de mettre en valeur aussi bien le patrimoine existant bâti (Couvent, Eglise Saint-Léon) que le patrimoine végétal du site caractérisé par un acacia qui règne dans l’ancienne cour de récréation de l’école.

© photo: Adrien Guitard

La Providence – rendu architectural, habitat collectif à Montpellier, TLA architectes

Le projet organise donc la vie de ce petit îlot autour de cet arbre créer un beau jardin en lieu et place de l’ancienne cour bituminée. Ainsi, le projet désimperméabilise 100% des espaces libres de l’état existant ; Un acte fort dans un quartier dense comme celui des Beaux-Arts.

La Providence – rendu architectural, habitat collectif à Montpellier, TLA architectes

© photo: Adrien Guitard

La Providence – rendu architectural, habitat collectif à Montpellier, TLA architectesLa Providence – rendu architectural, habitat collectif à Montpellier, TLA architectesLa Providence – rendu architectural, habitat collectif à Montpellier, TLA architectesLa Providence – rendu architectural, habitat collectif à Montpellier, TLA architectes